Pôle d’enseignement supérieur et administration – Lycée Saint-Jean à Besançon (25)

Université
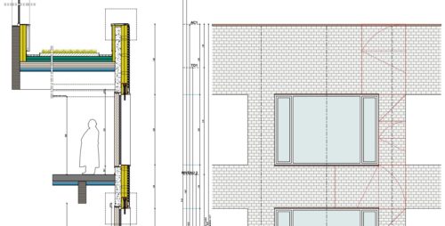
Qualité d'usage, modularité des salles d'enseignement et applications numériques. Le confort des occupants est au centre de la conception via notamment l'apport de lumière naturelle qualitatif, la grande transparence et la maitrise du confort en période estivale.
#Bas carbone #Performance énergétique #Confort visuel #Végétalisation toiture #Béton bas carbone #Impact carbone maîtrisé #Modularité des espaces #Confort d'été sans climatisation #Applications numériques

Qualité d'usage, modularité des salles d'enseignement et applications numériques. Le confort des occupants est au centre de la conception via notamment l'apport de lumière naturelle qualitatif, la grande transparence et la maitrise du confort en période estivale.
Pôle d'enseignement supérieur et administration – Lycée Saint-Jean à Besançon (25)
Maître d'Ouvrage Institution Notre-Dame Saint-Jean
ArchitecteAtelier Tardy et Associés
Rôle d'ETAMINEBE Qualité environnementale
Livraison2025
Travaux HT8 M€
Surface2900 m²
Crédit photos : Nicolas Waltefaugle - Photographe
Le programme
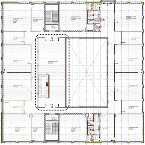
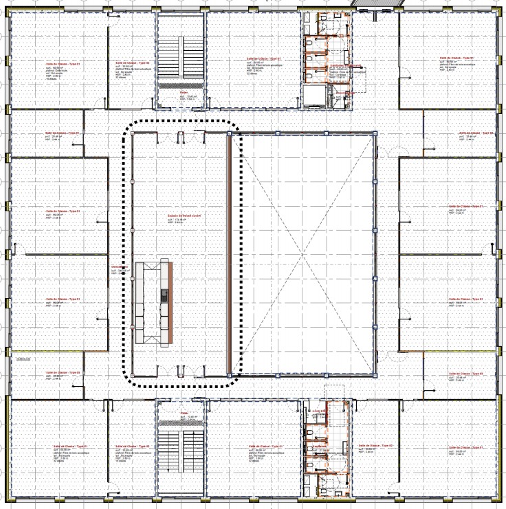
Construction d’un bâtiment venant en extension du lycée pour les classes préparatoires. Fort développement des applications numériques et modes de travail en ateliers impliquant la modularité des salles. D’une surface globale de 2 900 m², le bâtiment est composé de :
- Hall d’accueil et espaces d’exposition,
- Salles de travail en classe entière ou demi groupe,
- Bulles de travail en sous-groupe,
- Salle polyvalente de l’institution pour 300 places,
- Bureaux administration,
- Locaux techniques.
La contribution d'Etamine au projet
Etamine intervient en tant que co-traitant pour une mission de base complète.Nous avons réalisé notamment :
- les études de faisabilité en approvisionnement énergétique pour comparer en cout global les différentes solutions, ainsi que l’intégration d’une centrale solaire photovoltaïque en autoconsommation.
- Les simulations thermiques par STD ont permis de confirmer le confort en période estivale.
- Cahier des charges pour la prestation de mesure d’étanchéité à l’air.
- Suivi de l’application de la charte de chantier à faibles nuisances.






